Valuers Valuers - Estate Agents - LettingsEstate Agents

4 bed House For Sale

Ashford Road, High Halden, TN26 Guide Price, £1,195,000 - Freehold

KEY FEATURES

  • Exceptional detached 4 bedroom twin-roundel Kentish oast house
  • Extensively upgraded by current owners to create a high-quality country home
  • Generous, characterful accommodation with further potential (stp)
  • Immaculately presented blending period features with refined modern finishes
  • Set within gardens extending to circa 0.7 acre (unmeasured) backing directly onto open farmland
  • Long driveway with ample parking and detached garage with cellar
  • Uninterrupted countryside views and a high degree of privacy and seclusion
  • Convenient access to Tenterden, Ashford and Ashford International Station
  • Wide choice of good local schools including Ashford Grammars

SUMMARY

A Rare and Elegant Kentish Oasthouse in a Sublime Rural Setting This distinguished unlisted twin-roundel Kentish oast house sensitively converted in the early 1970’s, has since been extensively and thoughtfully upgraded by the current owners to create a high-quality, high-specification modern residence.  The interiors are immaculately presented, combining  refined modern comfort with authentic period detailing, resulting in a home that feels both timeless and exceptionally well finished throughout. Approached via a long driveway, the property enjoys privacy, seclusion and a strong sense of arrival, with ample parking and a detached brick garage incorporating a cellar. The gardens form a superb setting for the house, featuring a large paved terrace ideal for entertaining, mature planting, a wildlife pond and far-reaching countryside views. Positioned on the edge of the highly regarded village of High Halden, Tanden Oast offers an outstanding balance of rural tranquillity and connectivity, with the Wealden town of Tenterden and the market town of Ashford, including its international rail services, within easy reach.


DETAILS

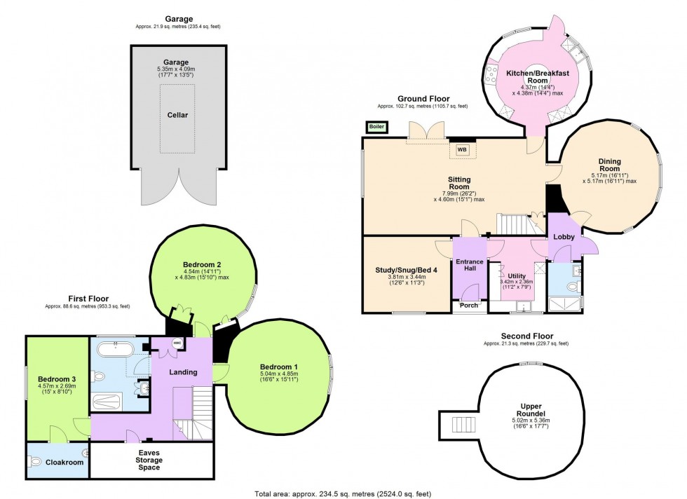
GROUND FLOOR

The ground floor flows naturally, anchored by the warmth of engineered oak flooring and the architectural drama of the original roundels. The principal reception rooms are rich in character, featuring exposed beams, historic timbers, and brickwork, yet remain light and inviting. These elegant yet comfortable spaces suit both everyday living and formal entertaining, with views and access to the gardens and terrace.
The kitchen, situated in one of the roundels, is fitted with stylish shaker-style units, quartz worktops, and high-spec integrated appliances. A central round island offers 180-degree views of the gardens and grazing land beyond. The other roundel is arranged as a formal dining space, perfect for large family gatherings around its dramatic round table.

GROUND FLOOR contd.

The spacious main sitting room is ideal for country living, centred around a wood-burning stove for cosy winter evenings, while French doors open onto the garden in summer. Also on this floor is a versatile second reception room, currently used as a snug and office, which could easily serve as a bedroom thanks to a contemporary shower room nearby. Practicality is well catered for with a welcoming entrance hall, inner lobby for storage, and a cleverly designed utility room matching the kitchen.

FIRST FLOOR

The landing is a beautiful, characterful space in itself, providing access to all three bedrooms bedrooms on this floor, extensive eaves storage, and the additional roundel room above, accessed via a pull-down ladder.

The bedrooms are generously proportioned and individually charming, shaped by the curvature of the oasts and other period features. Two large roundel bedrooms offer peaceful retreats with delightful views over the gardens and farmland. The third bedroom, located at the end of the landing, benefits from a unique character and an eaves-built cloakroom. A stylish family bathroom features a walk-in shower and a claw-foot bath perfectly positioned to enjoy the views—an indulgent space to unwind.

SECOND FLOOR

Accessed by a pull-down ladder, the fully converted second-floor roundel offers bonus space ideal as a teenage den, home office or principal bedroom suite, especially as it boasts stunning views as far as the North Downs. Lapsed planning consent exists to add an en-suite in the main loft space adjacent to this room, a rear dormer and staircase (Ashford Borough Council ref: 99/00171/AS).

GARDENS & GROUNDS

A sweeping pebble driveway leads to an extensive parking and turning area, in the middle of which is a beautiful Mulberry tree. The gardens are thoughtfully maintained to provide privacy, structure, and natural beauty. A paved terrace offers a perfect spot for outdoor dining and entertaining, while lawns, mature planting, and a large wildlife pond create a serene, park-like atmosphere (we understand this property owns 2/3rds of the pond).
Backing onto open grazing land and open countryside, the setting offers a profound sense of calm. The original hop press stands as a distinctive sculptural feature, celebrating the property’s heritage.

GARAGE & ANCILLARY SPACE

A detached brick garage, discreetly positioned to the side, provides parking and storage, with the added benefit of a useful cellar, an uncommon and practical feature.

SERVICES

Mains: water and electricity. Oil fired central heating. Electric under floor heating to kitchen. Private drainage. EPC Rating: E. Local Authority: Ashford Borough Council. Council Tax Band: G.

LOCATION FINDER

what3words: ///tidal.stripped.dimension

Contact us

To discuss this property please call us on:

01580 766044

Reference:

Floorplan for Ashford Road, High Halden, TN26

Request a Viewing



1About You


@

2Pick a Day


  1. This Week
  2. Next Week
  3. In a Fortnight

3Select a Time



Follow The Property Jungle Library on Facebook